
塑钢爬梯(也称塑钢踏步,人孔踏步)外包工程塑料,内嵌**圆钢或螺纹钢。具有外形美观,性好,等特点,同时还具有耐水,耐油,腐蚀,耐化学品的特点。在-15—100°C环境里能长期使用。是传统爬梯的理想替代品。是爬梯的发展方向。
塑钢爬梯**大的优点是一次投入,无须定期维修养护。
一 应用适用于各类检查井、水塔、人防工程,边坡地铁隧道、工业与民用建筑等作固定上下梯,尤其适用于污水检查井。
二 主要性能指标
1
2
3 耐压试验 30KV 不击穿
4
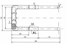
5 外形尺寸 符合国标图集97S501-1
- 参考资料